Worst House on the Street Logo
Clumber Avenue, Mapperley, Nottingham NG3 - Image 1
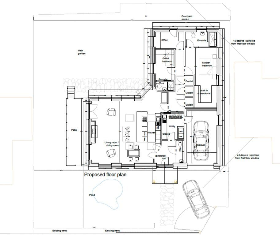
Clumber Avenue, Mapperley, Nottingham NG3 - Image 2
Clumber Avenue, Mapperley, Nottingham NG3 - Image 3

Clumber Avenue, Mapperley, Nottingham NG3

East Midlands

£275,000
Listed on 11/12/2025

Property Details

Bedrooms
N/A
Type
Detached house

Description

This parcel of land, encompassing approximately 579 sq. metres, is conveniently located near Mapperley’s vibrant amenities. It comes with conditional planning permission from Gedling Borough Council (reference 2025/0054, granted July 2025) for the construction of a self-build detached bungalow. Alternatively, there exists the potential to develop two separate homes, subject to obtaining necessary planning approvals. The site is accessible via a gated driveway off Clumber Avenue and offers no upward chain, making it an appealing proposition for developers or individuals looking to create their ideal living space. The proposed layout for the bungalow includes an entrance hall that leads into a utility area and WC, with internal access to a garage. A modern open-plan living and kitchen area is designed to be the focal point of the home, which flows out to a patio overlooking the garden. Additionally, there are plans for two bedrooms each with en-suites and an office space that also provides access to an external courtyard. This blank canvas holds significant investment potential for those interested in custom building their residence or pursuing dual dwelling options. Viewing is highly encouraged for interested parties seeking more insights into this opportunity. Detailed plans and an ecological report can be made available upon request.

Investment Analysis

(NG3 area)
Area Average
£247/sq ft
Avg Rent (weekly)
£271
Avg Yield
6.4%

Renovation Potential

Heavy Refurb
Est. Renovation Cost
£60,000 - £85,000
Note: Renovation cost estimates are AI-generated based on property location and general characteristics, and may not reflect actual costs.
Monthly Sales
37
Average per month
Market Turnover
16%
Properties sold annually

Local Market Trend (NG3)

Area prices are stable by +1.1% over the last 12 months
3 year growth: 2.1%
5 year growth: 21.7%
Investment Disclaimer: Analysis based on NG3 area averages and may not reflect property-specific factors like condition, exact location, or unique features. Any renovation cost estimates provided are AI-generated and should be considered indicative only. Renovation costs vary significantly based on property condition and scope of work. Always conduct professional surveys and get multiple quotes before making investment decisions.

Location

Clumber Avenue, Mapperley, Nottingham NG3
Loading map...

Mortgage Calculator

£
£
£
%
%
years

Current average 2-year fixed rate is 4.19%

Current average variable rate is 6.78%

Monthly Repayments
£1,007
Based on a loan of £206,250 over 30 years at 4.19% interest

These results are estimates and are only intended as a guide. Make sure you obtain accurate figures from your lender before committing to any mortgage. Your home may be repossessed if you do not keep up repayments on a mortgage.

Next Steps

Explore services to help you with this property purchase.

Need a mortgage for this property?

Explore personalised financing options tailored to this property

No obligation, free consultation

YOUR HOME MAY BE REPOSSESSED IF YOU DO NOT KEEP UP REPAYMENTS ON YOUR MORTGAGE