Worst House on the Street Logo
Liskeard, Cornwall PL14 - Image 1
Liskeard, Cornwall PL14 - Image 2
Liskeard, Cornwall PL14 - Image 3
Liskeard, Cornwall PL14 - Image 4
Liskeard, Cornwall PL14 - Image 5

Liskeard, Cornwall PL14

South West

£300,000
Listed on 28/03/2025

Property Details

Bedrooms
2
Type
Detached house

Description

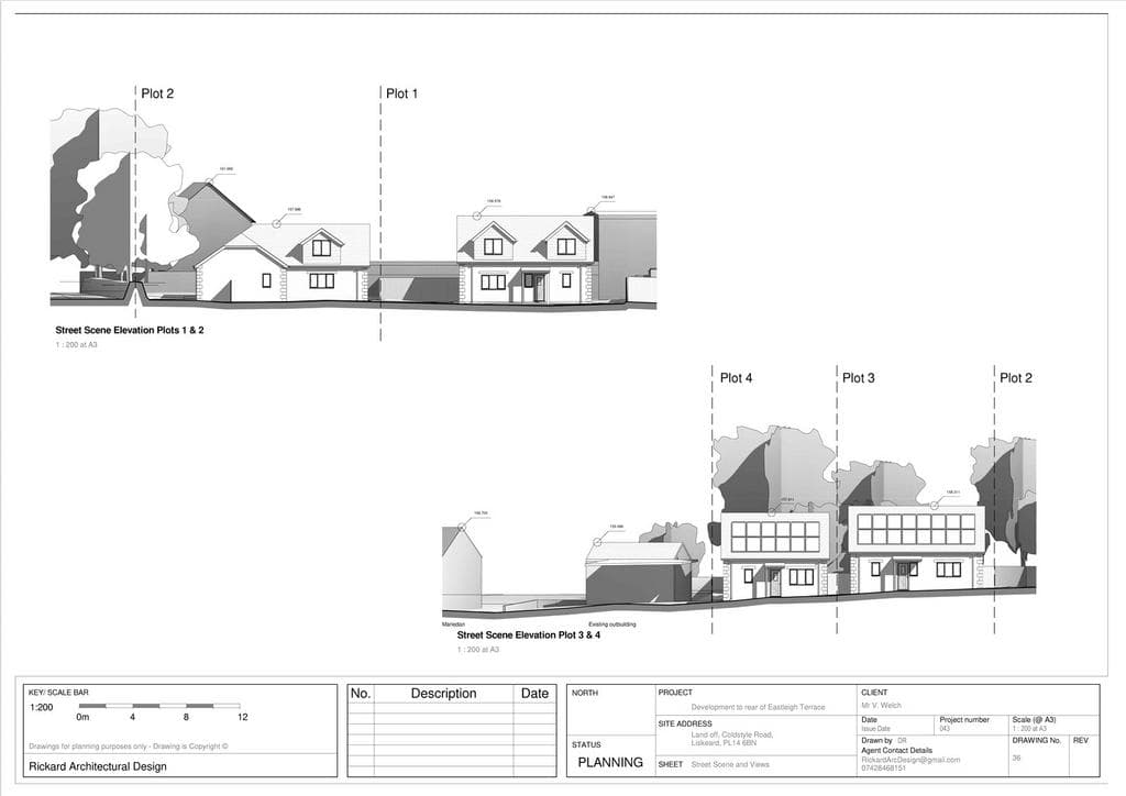
This property presents a promising renovation and investment opportunity in Liskeard, a charming market town known for its community spirit and accessibility. The site is poised for the development of four detached dwellings, including one two-bedroom home, two three-bedroom homes, and one four-bedroom residence. Each proposed home is designed with eco-friendly features, ensuring sustainability alongside spacious gardens that offer potential for outdoor living. Located on the outskirts of Liskeard town centre, the site enjoys a tranquil setting while remaining close to essential amenities. The level terrain ensures easy construction access, and the surrounding area consists of established residential properties. With mains services readily available nearby, this location is well-suited for modern family living. The planning approval can be verified under application number PA24/02251, which includes detailed drawings and additional documentation accessible online or through our local office. Furthermore, there’s an option to divide the site and sell three of the proposed dwellings as a separate lot, providing flexible investment potential. Prospective buyers are encouraged to confirm service availability and any associated connection costs independently. The land is being sold freehold with vacant possession upon completion. For those interested in exploring this unique development opportunity further, please get in touch with our office to arrange a viewing.

Investment Analysis

(PL14 area)
Area Average
£266/sq ft
Avg Rent (weekly)
£233
Avg Yield
4.0%

Renovation Potential

Est. Renovation Cost
£30,000 - £75,000
10-25% of property value
Monthly Sales
17
Average per month
Market Turnover
22%
Properties sold annually

Local Market Trend (PL14)

Area prices are rising by +2.1% over the last 12 months
3 year growth: 2.4%
5 year growth: 22.5%
Investment Disclaimer: Analysis based on PL14 area averages and may not reflect property-specific factors like condition, exact location, or unique features. Renovation costs vary significantly based on property condition and scope of work. Always conduct professional surveys and get multiple quotes before making investment decisions.

Location

Liskeard, Cornwall PL14
Map showing location of Liskeard, Cornwall PL14
Open Map