Worst House on the Street Logo
Mosshouse Road, Blackpool FY4 - Image 1
Mosshouse Road, Blackpool FY4 - Image 2
Mosshouse Road, Blackpool FY4 - Image 3
Mosshouse Road, Blackpool FY4 - Image 4

Mosshouse Road, Blackpool FY4

North West

£110,000
Listed on 27/02/2025

Property Details

Bedrooms
5
Type
Detached house

Description

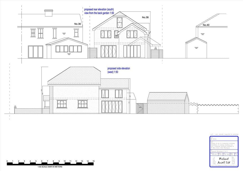
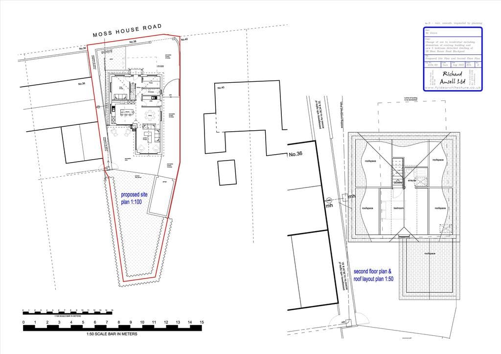
This property presents a compelling opportunity for renovation and investment in a desirable residential area. Currently configured as a five-bedroom home, it offers ample space and potential for customization to suit various needs. The site has received detailed planning consent as of November 24, 2021, allowing for the construction of a spacious four or five-bedroom detached house. This aspect enhances its attractiveness for those interested in developing their own tailored living space or capitalizing on the local real estate market. In addition to its size, the property’s location is advantageous, providing easy access to essential amenities and transport links, which are vital for both homeowners and future tenants. The surrounding neighborhood is well-established, making this an appealing option for families or investors seeking long-term rental opportunities. For comprehensive details regarding the proposed plans and layout, potential buyers are encouraged to consult the Blackpool Council Planning Department with application number 20/0250. This property stands as a blank canvas for those looking to make their mark on the local housing landscape while also enjoying the benefits of community living. Council Tax information is currently categorized as Band TBC. Please note that all prospective buyers must undergo identity verification checks as part of anti-money laundering regulations, with additional charges applicable through our designated third-party service. Further details can be obtained from our branch.

Investment Analysis

(FY4 area)
Area Average
£159/sq ft
Avg Rent (weekly)
£153
Avg Yield
5.1%

Renovation Potential

Heavy Refurb
Est. Renovation Cost
£150,000 - £250,000
Note: Renovation cost estimates are AI-generated based on property location and general characteristics, and may not reflect actual costs.
Monthly Sales
53
Average per month
Market Turnover
16%
Properties sold annually

Local Market Trend (FY4)

Area prices are rising by +4.0% over the last 12 months
3 year growth: 1.4%
5 year growth: 10.2%
Investment Disclaimer: Analysis based on FY4 area averages and may not reflect property-specific factors like condition, exact location, or unique features. Any renovation cost estimates provided are AI-generated and should be considered indicative only. Renovation costs vary significantly based on property condition and scope of work. Always conduct professional surveys and get multiple quotes before making investment decisions.

Location

Mosshouse Road, Blackpool FY4
Loading map...

Mortgage Calculator

£
£
£
%
%
years

Current average 2-year fixed rate is 4.19%

Current average variable rate is 6.78%

Monthly Repayments
£403
Based on a loan of £82,500 over 30 years at 4.19% interest

These results are estimates and are only intended as a guide. Make sure you obtain accurate figures from your lender before committing to any mortgage. Your home may be repossessed if you do not keep up repayments on a mortgage.

Next Steps

Explore services to help you with this property purchase.

Need a mortgage for this property?

Explore personalised financing options tailored to this property

No obligation, free consultation

YOUR HOME MAY BE REPOSSESSED IF YOU DO NOT KEEP UP REPAYMENTS ON YOUR MORTGAGE

Similar Properties