Worst House on the Street Logo
Parkside, Manea - Image 1
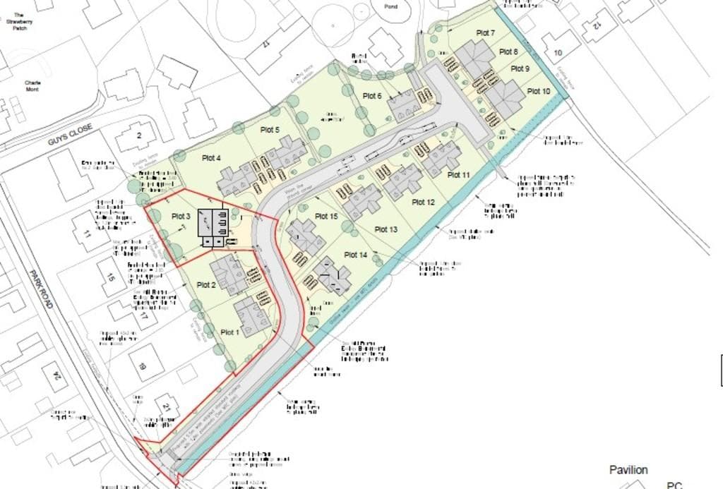
Parkside, Manea - Image 2
Parkside, Manea - Image 3

Parkside, Manea

East of England

£125,000
Listed on 31/05/2024

Property Details

Bedrooms
4
Type
Property With Land

Description

This spacious four-bedroom property presents a unique opportunity for renovation or investment. Nestled within a small development, the building plot enjoys a favorable position and has previously held full planning permission under reference F/YR20/1239/RM, which has since lapsed. Given the ongoing development activity in the area, there is potential for the planning to be renewed, making this an appealing prospect for those looking to capitalize on its value. The plot dimensions are approximately 18 meters in width and 30 meters in depth, providing ample space for redevelopment or enhancement of existing structures. The setting benefits from proximity to local amenities, schools, and transport links, further increasing its attractiveness to future tenants or buyers. In addition to its structural potential, the property allows for customization that aligns with current market demands, making it an ideal candidate for investors seeking to maximize returns. With careful planning and execution, there’s significant potential to transform this space into a desirable living environment that meets modern standards. As part of the acquisition process, identity verification will be required through our partner company. This modest fee facilitates a smooth transaction as you navigate your investment journey. Interested parties are encouraged to conduct their own due diligence and assess how they can best leverage the opportunities presented by this versatile property.

Investment Analysis

(PE15 area)
Area Average
£250/sq ft
Avg Rent (weekly)
£218
Avg Yield
4.1%

Renovation Potential

Light Refurb
Est. Renovation Cost
£25,000 - £50,000
Note: Renovation cost estimates are AI-generated based on property location and general characteristics, and may not reflect actual costs.
Monthly Sales
31
Average per month
Market Turnover
7%
Properties sold annually

Local Market Trend (PE15)

Area prices are falling by -3.3% over the last 12 months
3 year growth: -5.2%
5 year growth: +4.1%
Investment Disclaimer: Analysis based on PE15 area averages and may not reflect property-specific factors like condition, exact location, or unique features. Any renovation cost estimates provided are AI-generated and should be considered indicative only. Renovation costs vary significantly based on property condition and scope of work. Always conduct professional surveys and get multiple quotes before making investment decisions.

Location

Parkside, Manea
Loading map...

Mortgage Calculator

£
£
£
%
%
years

Current average 2-year fixed rate is 3.91%

Current average variable rate is 6.62%

Monthly Repayments
£443
Based on a loan of £93,750 over 30 years at 3.91% interest

These results are estimates and are only intended as a guide. Make sure you obtain accurate figures from your lender before committing to any mortgage. Your home may be repossessed if you do not keep up repayments on a mortgage.

Stamp Duty Calculator

This calculation uses non-residential (land/commercial) tax rates.

Price History

-28.6% since listed
£125,000£10,000(-7.4%)
20/09/2025
Current price
£135,000£15,000(-10.0%)
24/06/2025
£150,000£25,000(-14.3%)
25/09/2024
£175,000Initial listing
30/05/2024

Next Steps

Explore services to help you with this property purchase.

Get help with this property

Financing, surveys and more – choose a service and we’ll connect you with our trusted partners.

Finance for Buy-to-Let, Bridging & Development