Worst House on the Street Logo
Station Road, Ten Mile Bank, Downham Market, Norfolk, PE38 - Image 1
Station Road, Ten Mile Bank, Downham Market, Norfolk, PE38 - Image 2
Station Road, Ten Mile Bank, Downham Market, Norfolk, PE38 - Image 3
Station Road, Ten Mile Bank, Downham Market, Norfolk, PE38 - Image 4
Station Road, Ten Mile Bank, Downham Market, Norfolk, PE38 - Image 5

Station Road, Ten Mile Bank, Downham Market, Norfolk, PE38

East of England

£125,000
Listed on 27/03/2024

Property Details

Bedrooms
3
Type
Property With Land

Description

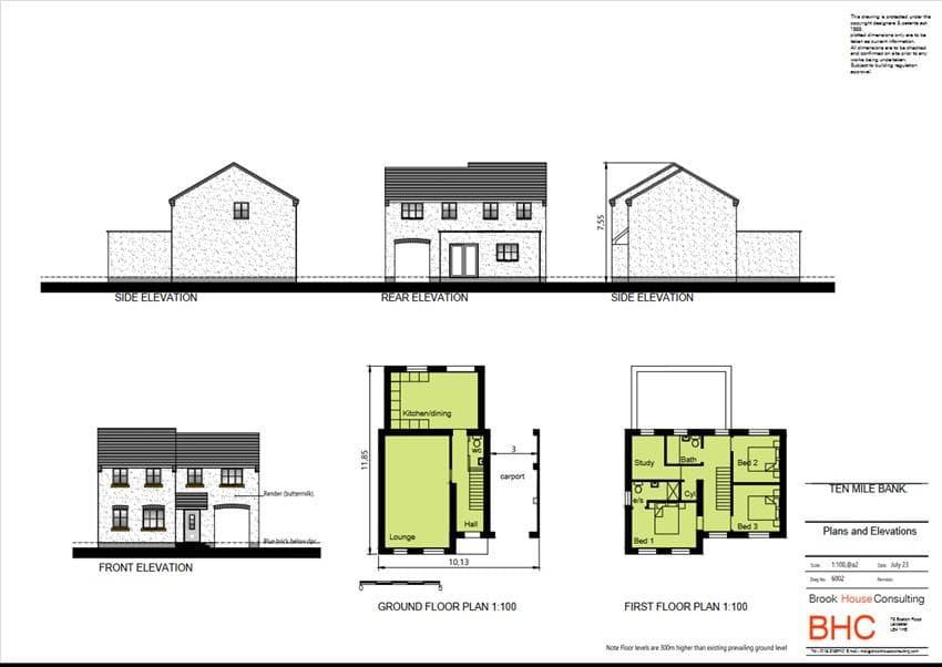
This substantial plot, approximately 0.24 acres (subject to measured survey), presents an excellent opportunity for developers or individuals looking to build their dream home. With full planning permission already in place for a generous two-storey detached house, complete with a carport or garage, the site is primed for construction. Nestled in a tranquil rural village, the property benefits from convenient access to transport links along the A10, making it ideal for those who appreciate the balance between countryside living and urban connectivity. The approved plans detail spacious living accommodations of around 128 square meters (subject to measured survey), providing ample space for modern family living. The proposed design includes three bedrooms, along with a study that could serve as a fourth bedroom, allowing potential buyers to tailor the layout to their needs. This flexibility enhances the property's appeal as either a long-term family residence or an investment opportunity. For those interested in further details regarding the planning approval, reference number 22/02138/F can be accessed through the Kings Lynn and West Norfolk planning portal or requested directly from the agent. Additionally, a Topographical Survey has been completed for the land, which can aid in any future development considerations. The property is offered on a freehold basis, allowing new owners complete control over its use and development. Given its size and potential for custom development in this desirable location, this plot represents a noteworthy proposition for discerning investors and builders alike.

Investment Analysis

(PE38 area)
Area Average
£271/sq ft
Avg Rent (weekly)
£234
Avg Yield
4.1%

Renovation Potential

Heavy Refurb
Est. Renovation Cost
£200,000 - £300,000
Note: Renovation cost estimates are AI-generated based on property location and general characteristics, and may not reflect actual costs.
Monthly Sales
21
Average per month
Market Turnover
11%
Properties sold annually

Local Market Trend (PE38)

Area prices are falling by -3.4% over the last 12 months
3 year growth: -3.8%
5 year growth: +11.8%
Investment Disclaimer: Analysis based on PE38 area averages and may not reflect property-specific factors like condition, exact location, or unique features. Any renovation cost estimates provided are AI-generated and should be considered indicative only. Renovation costs vary significantly based on property condition and scope of work. Always conduct professional surveys and get multiple quotes before making investment decisions.

Location

Station Road, Ten Mile Bank, Downham Market, Norfolk, PE38
Loading map...

Mortgage Calculator

£
£
£
%
%
years

Current average 2-year fixed rate is 3.97%

Current average variable rate is 6.59%

Monthly Repayments
£446
Based on a loan of £93,750 over 30 years at 3.97% interest

These results are estimates and are only intended as a guide. Make sure you obtain accurate figures from your lender before committing to any mortgage. Your home may be repossessed if you do not keep up repayments on a mortgage.

Stamp Duty Calculator

This calculation uses non-residential (land/commercial) tax rates.

Price History

-30.6% since listed
£125,000£5,000(-3.8%)
28/01/2026
Current price
£130,000£5,000(-3.7%)
12/01/2026
£135,000£10,000(-6.9%)
13/08/2025
£145,000£5,000(-3.3%)
03/04/2025
£150,000£10,000(-6.3%)
01/09/2024
£160,000£10,000(-5.9%)
03/07/2024
£170,000£10,000(-5.6%)
02/05/2024
£180,000Initial listing
27/03/2024

Next Steps

Explore services to help you with this property purchase.

Get help with this property

Financing, surveys and more – choose a service and we’ll connect you with our trusted partners.