Worst House on the Street Logo
Hassock Lane North, Shipley, Heanor - Image 1
Hassock Lane North, Shipley, Heanor - Image 2
Hassock Lane North, Shipley, Heanor - Image 3
Hassock Lane North, Shipley, Heanor - Image 4
Hassock Lane North, Shipley, Heanor - Image 5

Hassock Lane North, Shipley, Heanor

East Midlands

£495,000
Listed on 23/08/2022

Property Details

Bedrooms
3
Type
Detached house
Area
1377 sqft

Description

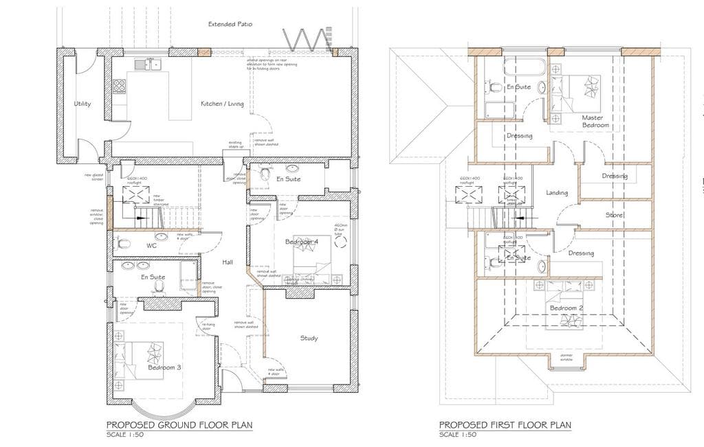
This detached bungalow presents a unique opportunity for renovation and redevelopment on a generous plot of just over one-third of an acre. With approved planning consent, the property is set for transformation into a modern two-storey dwelling, allowing for significant enhancements that could increase both living space and overall value. Situated in the desirable village of Shipley, the property enjoys an elevated position which offers expansive views over the surrounding countryside. This tranquil setting is complemented by its proximity to Shipley Country Park, making it a suitable option not only for developers but also for self-builders looking to create their dream home. The existing bungalow features three well-proportioned double bedrooms and a flexible front reception room that can serve as a fourth bedroom or office space. Although currently livable, the home would benefit from some modernization, providing the perfect canvas to tailor it to personal tastes while capitalizing on the potential for expansion. The interior layout includes essential amenities such as a family dining kitchen with adjoining utility and a comfortable sitting room overlooking the gardens. Outside, the property has been thoughtfully designed to make use of the garden space, which includes tiered areas that descend towards paddocks and open fields at the rear. This outdoor space offers various possibilities for landscaping or additional structures, including garden outbuildings like a greenhouse and workshop. Accessibility is straightforward with ample parking provided by a driveway leading to a detached garage. The front garden is bordered by ornamental gravel and shrubs, ensuring low maintenance while enhancing curb appeal. For those interested in development potential, detailed planning permissions have already been granted: one for extending and upgrading the existing bungalow into a contemporary four-bedroom home, and another for constructing an additional detached dwelling on-site. This dual opportunity significantly enhances its attractiveness to developers or families looking to create multi-generational living arrangements. In summary, this property not only provides immediate liveability but also harbors extensive renovation opportunities that could transform it into an exceptional residential asset in an idyllic location.

Investment Analysis

(DE75 area)

Above Market Value

This property is priced +61.4% above area average per sq ft

+61.4%
This Property
£359/sq ft
Area Average
£223/sq ft
Avg Rent (weekly)
£195
Avg Yield
4.5%

Renovation Potential

Est. Renovation Cost
£49,500 - £123,750
10-25% of property value
Target Value
£337,399
10% above area average per sq ft
Potential ROI
-45.5%
After renovation
Monthly Sales
19
Average per month
Market Turnover
32%
Properties sold annually

Local Market Trend (DE75)

Area prices are falling by +3.9% over the last 12 months
3 year growth: 12.3%
5 year growth: 39.8%
Investment Disclaimer: Analysis based on DE75 area averages and may not reflect property-specific factors like condition, exact location, or unique features. Renovation costs vary significantly based on property condition and scope of work. Always conduct professional surveys and get multiple quotes before making investment decisions.

Location

Hassock Lane North, Shipley, Heanor
Map showing location of Hassock Lane North, Shipley, Heanor
Open Map