Worst House on the Street Logo
430-432A Wilbraham Road, Chorlton M21 - Image 1
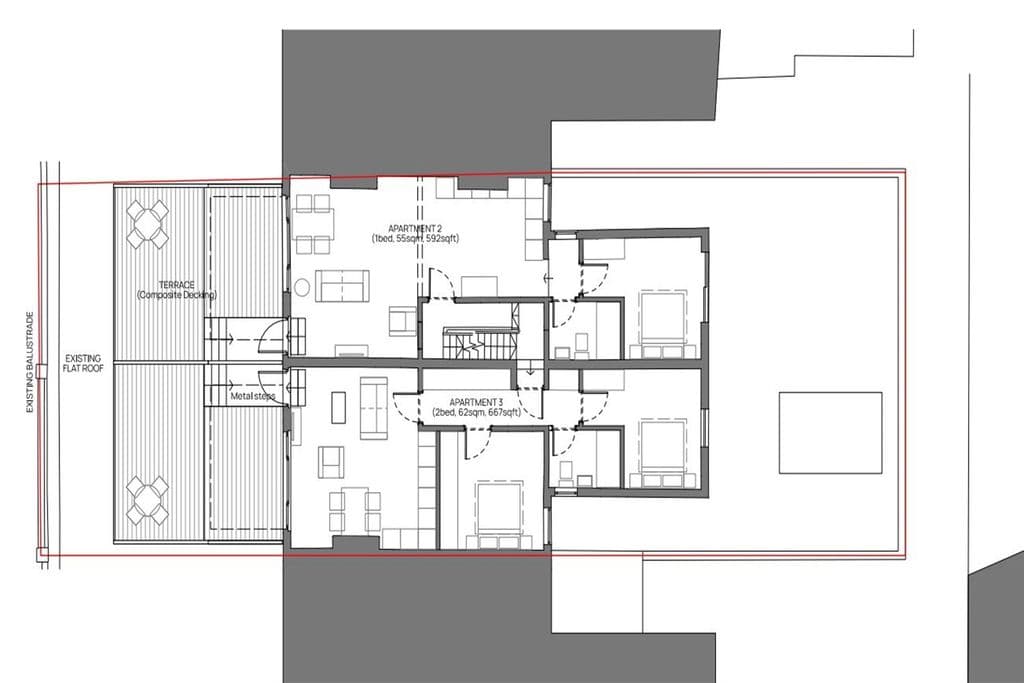
430-432A Wilbraham Road, Chorlton M21 - Image 2
430-432A Wilbraham Road, Chorlton M21 - Image 3

430-432A Wilbraham Road, Chorlton M21

North West

£595,000
Listed on 11/10/2025

Property Details

Bedrooms
4
Type
Detached house

Description

This property presents a compelling opportunity for renovation and investment, featuring planning permission for the conversion into eight self-contained apartments. The existing structure is currently configured as two Houses in Multiple Occupation (HMOs), making it an ideal starting point for transformation. The approved plans include a third-floor rear roof extension along with necessary alterations to the current outrigger, enhancing both the living space and overall functionality. With four bedrooms, this building has potential to be developed into thoughtfully designed apartments—ranging from one-bedroom units to larger two-bedroom homes—across its three floors. The proposed layouts include units of varying sizes, which can cater to diverse rental markets and attract a range of tenants or owners. Situated in a desirable town center location, the property benefits from excellent transport links. It is conveniently located within 140 meters of Chorlton Tram Station, providing quick access to Manchester city center and further afield. This prime location is also close to essential amenities such as shops, bars, restaurants, and green spaces like Chorlton Water Park along the River Mersey. Families will appreciate the availability of local schools and recreational facilities. The building will be sold freehold, allowing new owners to manage their investment without any leasehold constraints. Notably, there are no Community Infrastructure Levy (CIL) or Section 106 payments required for this project; however, prospective buyers are encouraged to verify this information with Manchester City Council. This property represents not just a renovation project but a chance to capitalize on Chorlton's growing popularity as a residential area. With its attractive location and planned enhancements, it stands poised for significant appreciation in value post-renovation.

Investment Analysis

(M21 area)
Area Average
£397/sq ft
Avg Rent (weekly)
£324
Avg Yield
3.8%

Renovation Potential

Est. Renovation Cost
£59,500 - £148,750
10-25% of property value
Monthly Sales
14
Average per month
Market Turnover
24%
Properties sold annually

Local Market Trend (M21)

Area prices are rising by +7.5% over the last 12 months
3 year growth: 17.1%
5 year growth: 33.7%
Investment Disclaimer: Analysis based on M21 area averages and may not reflect property-specific factors like condition, exact location, or unique features. Renovation costs vary significantly based on property condition and scope of work. Always conduct professional surveys and get multiple quotes before making investment decisions.

Location

430-432A Wilbraham Road, Chorlton M21
Map showing location of 430-432A Wilbraham Road, Chorlton M21
Open Map