Worst House on the Street Logo
Flowers Lane, Plaitford, Romsey, Hampshire SO51 - Image 1
Flowers Lane, Plaitford, Romsey, Hampshire SO51 - Image 2
Flowers Lane, Plaitford, Romsey, Hampshire SO51 - Image 3

Flowers Lane, Plaitford, Romsey, Hampshire SO51

South East

£250,000
Listed on 11/10/2025

Property Details

Bedrooms
N/A
Type
Detached house

Description

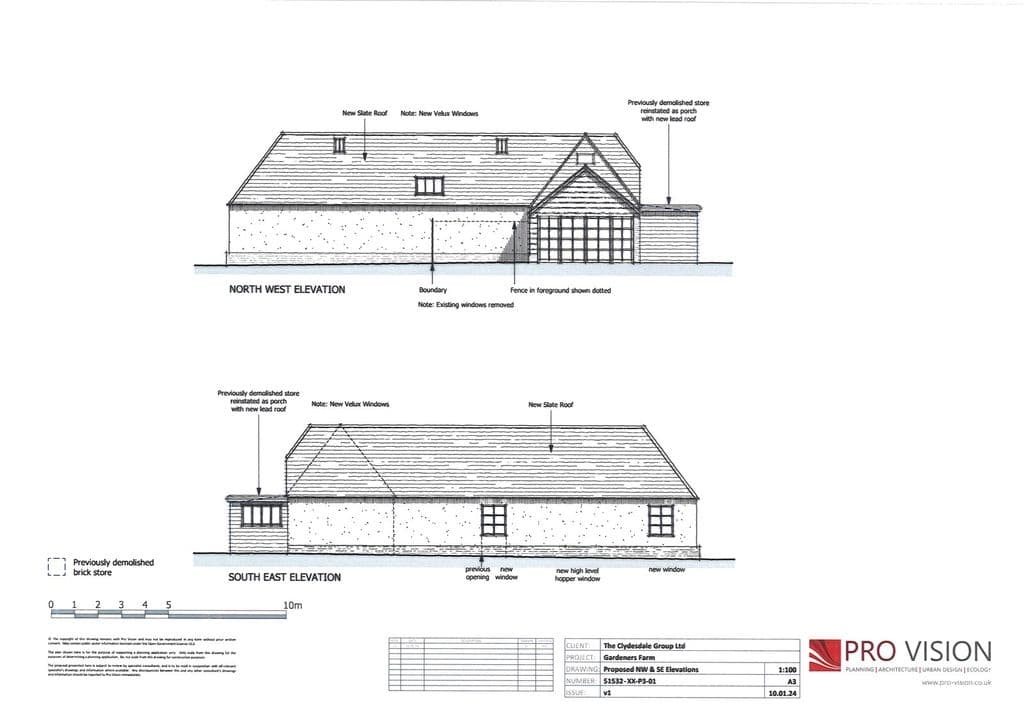
This property presents a compelling opportunity for renovation and investment in the charming village of Plaitford. Nestled in a peaceful location, the site encompasses approximately 0.18 acres and is currently home to a former stable that has the potential to be reimagined as a three-bedroom residence. Approved planning permission is in place, allowing for the construction of a detached home that merges traditional character with contemporary design. The proposed plans include essential features such as off-road parking for three vehicles, enhancing both convenience and functionality for future residents. Additionally, the property benefits from access to a shared driveway. Plaitford is ideally situated near the New Forest, providing residents with easy access to natural beauty and outdoor activities. Approximately six miles from Romsey, this area boasts a variety of amenities such as leisure facilities, diverse schooling options—both state and private—and local shops including two supermarkets. The larger urban centers of Southampton and Salisbury are conveniently reachable via the A36 and M27 corridors, while the historic city of Winchester is also a short drive away. For those looking to capitalize on the potential for development in this picturesque setting, this property offers an enticing blend of location advantages and renovation possibilities.

Investment Analysis

(SO51 area)
Area Average
£435/sq ft
Avg Rent (weekly)
£299
Avg Yield
3.1%

Renovation Potential

Est. Renovation Cost
£25,000 - £62,500
10-25% of property value
Monthly Sales
19
Average per month
Market Turnover
25%
Properties sold annually

Local Market Trend (SO51)

Area prices are falling by +2.3% over the last 12 months
3 year growth: -10.0%
5 year growth: 2.9%
Investment Disclaimer: Analysis based on SO51 area averages and may not reflect property-specific factors like condition, exact location, or unique features. Renovation costs vary significantly based on property condition and scope of work. Always conduct professional surveys and get multiple quotes before making investment decisions.

Location

Flowers Lane, Plaitford, Romsey, Hampshire SO51
Map showing location of Flowers Lane, Plaitford, Romsey, Hampshire SO51
Open Map