Worst House on the Street Logo
Stafford Road, Croydon - Image 1
Stafford Road, Croydon - Image 2
Stafford Road, Croydon - Image 3
Stafford Road, Croydon - Image 4
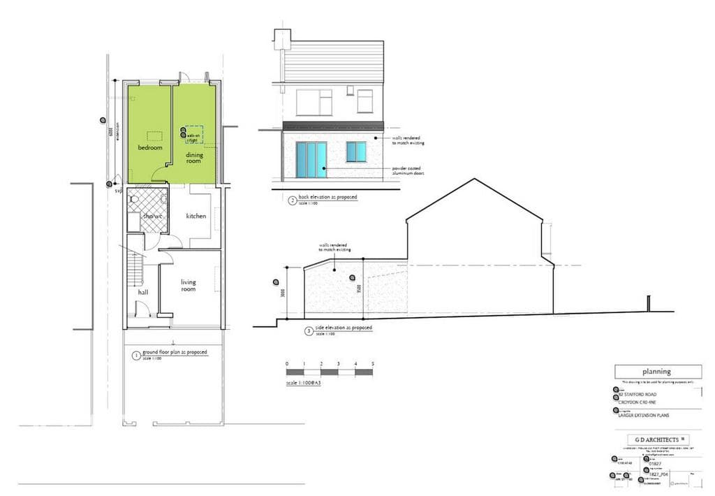
Stafford Road, Croydon - Image 5

Stafford Road, Croydon

South East

£450,000
Listed on 10/07/2025

Property Details

Bedrooms
3
Type
Semi-detached house
Area
893 sqft

Description

This three-bedroom end-of-terrace home presents a compelling opportunity for those looking to invest in a property with significant renovation potential. Nestled in a desirable area of Croydon, the location boasts proximity to expansive green spaces and is within walking distance of highly regarded local schools, including Wilson's School. Its strategic position ensures convenient access to transport links, with Waddon Station just a short stroll away, offering direct connections to London Bridge in approximately 23 minutes. The property features off-street parking for two vehicles and includes a double garage, adding to its practicality. Side access leads to the garden, which is currently designed for ease of maintenance but offers ample space for creative landscaping or expansion. Notably, there is already planning permission granted for loft conversion and rear extension, paving the way for enhanced living space that would suit family needs or increase rental prospects. Internally, the layout comprises an entrance hallway leading into two reception rooms, a wet room, and a kitchen on the ground floor. The first floor accommodates two spacious double bedrooms along with a single bedroom and a family bathroom. Given its current configuration and the potential to reconfigure with the approved plans, this property serves as an ideal blank canvas for buyers looking to personalize their living environment or capitalize on its investment potential. In addition to its residential appeal, developers may find it advantageous due to the opportunity for conversion into flats following the proposed expansions. With local amenities within easy reach, this home combines comfort with substantial growth possibilities in one of Croydon’s most promising neighborhoods.

Investment Analysis

(CR0 area)

Above Market Value

This property is priced +13.2% above area average per sq ft

+13.2%
This Property
£504/sq ft
Area Average
£445/sq ft
Avg Rent (weekly)
£368
Avg Yield
5.1%

Renovation Potential

Est. Renovation Cost
£45,000 - £112,500
10-25% of property value
Target Value
£437,124
10% above area average per sq ft
Potential ROI
-22.3%
After renovation
Monthly Sales
74
Average per month
Market Turnover
25%
Properties sold annually

Local Market Trend (CR0)

Area prices are rising by +4.2% over the last 12 months
3 year growth: 2.9%
5 year growth: 8.2%
Investment Disclaimer: Analysis based on CR0 area averages and may not reflect property-specific factors like condition, exact location, or unique features. Renovation costs vary significantly based on property condition and scope of work. Always conduct professional surveys and get multiple quotes before making investment decisions.

Location

Stafford Road, Croydon
Map showing location of Stafford Road, Croydon
Open Map