Worst House on the Street Logo
Broad Park Avenue, Ilfracombe, Devon, EX34 - Image 1
Broad Park Avenue, Ilfracombe, Devon, EX34 - Image 2
Broad Park Avenue, Ilfracombe, Devon, EX34 - Image 3
Broad Park Avenue, Ilfracombe, Devon, EX34 - Image 4
Broad Park Avenue, Ilfracombe, Devon, EX34 - Image 5

Broad Park Avenue, Ilfracombe, Devon, EX34

South West

£150,000
Listed on 18/06/2025

Property Details

Bedrooms
2
Type
Detached house
Area
902 sqft

Description

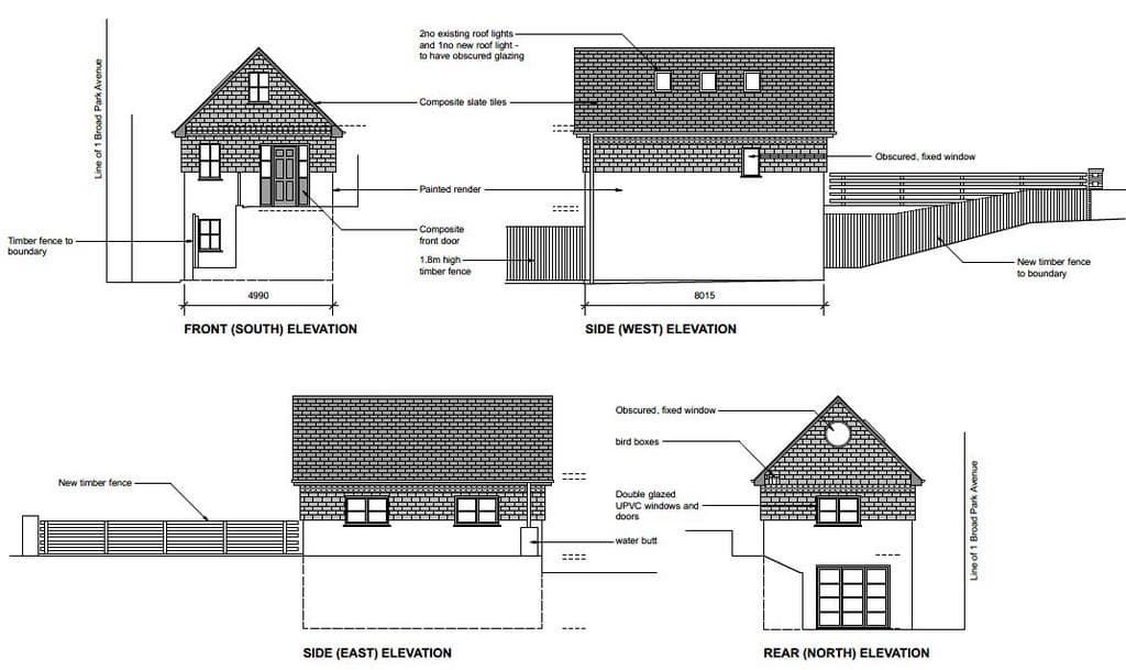
This property presents a significant renovation and investment opportunity, with planning permission recently granted for the conversion of the existing garage and workshop into a two-bedroom detached dwelling. The approved plans, noted under application number 78048 as of January 26, 2024, detail the transformation into a spacious home complemented by off-road parking and a private garden area. Constructed approximately 20 years ago, the building is structured using Beco Wallform (insulated concrete formwork) and features rendered elevations beneath a pitched slate roof. The space spans three levels, providing substantial potential for modern living arrangements. At ground level, the footprint measures 7.44m x 4.47m (24'5" x 14'8") and includes windows on both sides and at the rear, allowing for ample natural light. The property's layout includes an upper loft area that is currently accessible via ladder but offers room for improvement to enhance accessibility and functionality. Additionally, the lower ground floor provides further expansive space measuring 7.47m x 4.45m (24'6" x 14'7"), which could serve multiple purposes in the planned residential conversion. Externally, there is accommodation for two vehicles on a concrete hardstanding at the front, while the rear features a garden measuring approximately 12m in length (39ft), including a decked sitting area—perfect for outdoor living. The granted planning permission outlines an efficient conversion plan: upon completion, residents will enter through an entrance hall leading to two double bedrooms—one on the ground floor and another on the first floor—and a family bathroom. The proposed lower ground level will house an open-plan kitchen and lounge/diner that connects directly to the rear garden through double doors. The total internal area of this future home would be around 83.8m² (902ft²). Utilities are conveniently nearby with electricity already connected; water, sewerage, and gas supplies are readily accessible as well. This location not only allows for easy access to local amenities but also boasts pleasant views over the surrounding neighborhood towards scenic landscapes like Torrs and its tree-lined valley. As it stands, this property retains versatility; it could continue functioning as a garage/workshop if desired while providing an excellent investment prospect through its redevelopment potential into residential use. Early viewing is recommended to fully appreciate what this unique opportunity has to offer.

Investment Analysis

(EX34 area)

Below Market Value

This property is priced -41.1% below area average per sq ft

-41.1%
Potential saving
This Property
£166/sq ft
Area Average
£282/sq ft
Avg Rent (weekly)
£200
Avg Yield
3.3%

Renovation Potential

Est. Renovation Cost
£15,000 - £37,500
10-25% of property value
Target Value
£280,098
10% above area average per sq ft
Potential ROI
+49.4%
After renovation
Monthly Sales
11
Average per month
Market Turnover
5%
Properties sold annually

Local Market Trend (EX34)

Area prices are falling by +2.3% over the last 12 months
3 year growth: -10.7%
5 year growth: 15.9%
Investment Disclaimer: Analysis based on EX34 area averages and may not reflect property-specific factors like condition, exact location, or unique features. Renovation costs vary significantly based on property condition and scope of work. Always conduct professional surveys and get multiple quotes before making investment decisions.

Location

Broad Park Avenue, Ilfracombe, Devon, EX34
Map showing location of Broad Park Avenue, Ilfracombe, Devon, EX34
Open Map