Worst House on the Street Logo
Pochin Development Site - Image 1
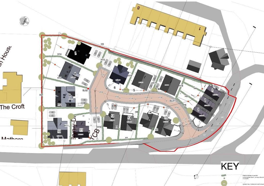
Pochin Development Site - Image 2
Pochin Development Site - Image 3
Pochin Development Site - Image 4
Pochin Development Site - Image 5

Pochin Development Site

Wales

£85,000
Listed on 20/06/2024

Property Details

Bedrooms
4
Type
Detached house

Description

This property offers a unique opportunity for those looking to invest in a prime location known for its charm and convenience. Nestled within an area that boasts easy access to local amenities, reputable schools, and reliable transport links, it presents a favorable environment for families and professionals alike. Currently comprising four bedrooms, the existing structure can serve as a starting point for your vision or renovation plans. The site enjoys stunning views of the surrounding mountains, which adds to its appeal and potential resale value after development. Importantly, planning consent is already in place for the construction of 12 detached homes. The approved designs provide a framework while allowing flexibility for customization to suit varying tastes and requirements upon further review of design specifications with the planning authority. This aspect opens up exciting possibilities for buyers who wish to collaborate with architects to create distinctive living spaces tailored to individual preferences. Access to the property is straightforward due to the established road network, which simplifies both current renovations and future construction efforts. As demand continues to grow in this region for quality housing options, this project stands out as a compelling investment opportunity. For those considering various design options within the granted planning permissions, site visits can be arranged to explore the full potential of this offering. Whether you are a developer seeking your next project or an individual aspiring to craft your dream home in an enviable setting, this property represents a noteworthy chance to engage in a significant development initiative.

Investment Analysis

(NP22 area)
Area Average
£149/sq ft

Renovation Potential

Est. Renovation Cost
£8,500 - £21,250
10-25% of property value
Monthly Sales
15
Average per month
Market Turnover
24%
Properties sold annually

Local Market Trend (NP22)

Area prices are rising by +11.4% over the last 12 months
3 year growth: 11.1%
5 year growth: 46.6%
Investment Disclaimer: Analysis based on NP22 area averages and may not reflect property-specific factors like condition, exact location, or unique features. Renovation costs vary significantly based on property condition and scope of work. Always conduct professional surveys and get multiple quotes before making investment decisions.

Location

Pochin Development Site
Map showing location of Pochin Development Site
Open Map