Worst House on the Street Logo
Pochin Development Site - Image 1
Pochin Development Site - Image 2
Pochin Development Site - Image 3
Pochin Development Site - Image 4
Pochin Development Site - Image 5

Pochin Development Site

Wales

£100,000
Listed on 22/06/2024

Property Details

Bedrooms
4
Type
Detached house

Description

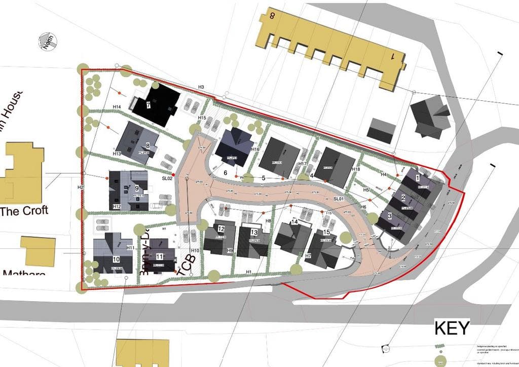
This property offers a unique opportunity for renovation or investment in a scenic and convenient location. Currently featuring four bedrooms, the existing structure provides a solid foundation for potential enhancements or complete redevelopment, making it appealing for both families and investors alike. Located in an area renowned for its picturesque surroundings and ease of access to local amenities, schools, and transportation links, this site is strategically positioned to attract future homeowners. The impressive mountain views add value to the property, enhancing its overall appeal. Planning permission has been granted for the development of 12 detached homes on the site, presenting a flexible canvas for various architectural designs. Buyers have the option to collaborate with architects to customize these designs according to specific preferences and market demands. This adaptability allows for creativity in developing properties that cater to diverse tastes. The established road access simplifies construction logistics and ensures that future residents will benefit from convenient entry points. Given the high demand for quality housing in this region, this property represents a promising investment opportunity with significant growth potential. For those interested in exploring this further, we can facilitate site visits and provide comprehensive information regarding planning permissions and design possibilities. This presents an exceptional chance to engage in a noteworthy development project within a vibrant community setting.

Investment Analysis

(NP22 area)
Area Average
£149/sq ft

Renovation Potential

Est. Renovation Cost
£10,000 - £25,000
10-25% of property value
Monthly Sales
15
Average per month
Market Turnover
24%
Properties sold annually

Local Market Trend (NP22)

Area prices are rising by +11.4% over the last 12 months
3 year growth: 11.1%
5 year growth: 46.6%
Investment Disclaimer: Analysis based on NP22 area averages and may not reflect property-specific factors like condition, exact location, or unique features. Renovation costs vary significantly based on property condition and scope of work. Always conduct professional surveys and get multiple quotes before making investment decisions.

Location

Pochin Development Site
Map showing location of Pochin Development Site
Open Map