Worst House on the Street Logo
Pochin Development Site - Image 1
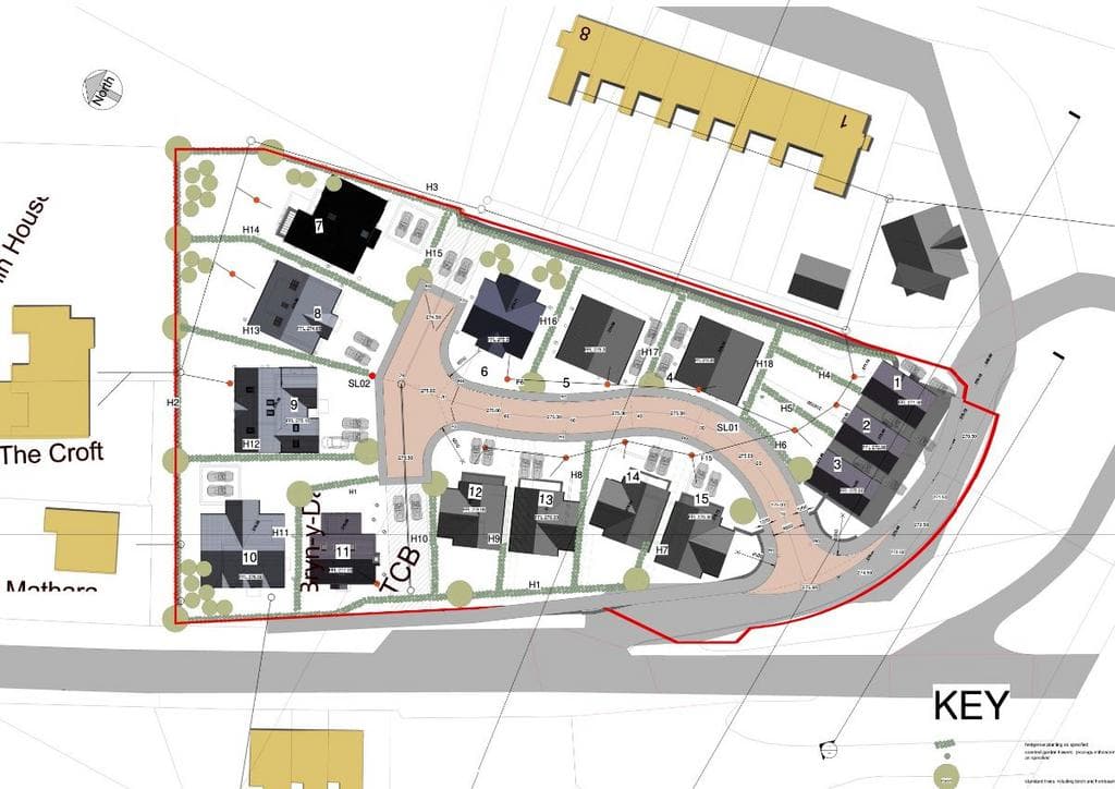
Pochin Development Site - Image 2
Pochin Development Site - Image 3
Pochin Development Site - Image 4
Pochin Development Site - Image 5

Pochin Development Site

Wales

£85,000
Listed on 14/06/2024

Property Details

Bedrooms
3
Type
Detached house

Description

This property is located in an attractive neighborhood known for its scenic beauty and proximity to essential amenities, schools, and transport connections. The area offers a serene environment with the added benefit of stunning mountain views, enhancing its appeal for potential homeowners and investors alike. Currently, planning consent has been obtained for the development of 12 detached homes. Several design concepts have already been approved, but there remains the flexibility to modify these plans to suit varying tastes and requirements, subject to further planning applications if desired. This presents a unique chance for buyers to collaborate with architects in crafting distinct properties that cater specifically to their personal visions. The site benefits from established road access, ensuring smooth logistics for construction as well as convenient entry for future residents. Given the ongoing demand for quality housing in this region, investing in this development represents a substantial opportunity. Interested parties can explore the various design options allowed under the existing planning permissions. Further details are available upon request, and site visits can be arranged for developers, investors, or those looking to create their ideal home in this coveted location. This project offers an exceptional chance to be involved in a prestigious development initiative within a sought-after community. Please reach out if you require additional information or wish to schedule a visit.

Investment Analysis

(NP22 area)
Area Average
£149/sq ft

Renovation Potential

Est. Renovation Cost
£8,500 - £21,250
10-25% of property value
Monthly Sales
15
Average per month
Market Turnover
24%
Properties sold annually

Local Market Trend (NP22)

Area prices are rising by +11.4% over the last 12 months
3 year growth: 11.1%
5 year growth: 46.6%
Investment Disclaimer: Analysis based on NP22 area averages and may not reflect property-specific factors like condition, exact location, or unique features. Renovation costs vary significantly based on property condition and scope of work. Always conduct professional surveys and get multiple quotes before making investment decisions.

Location

Pochin Development Site
Map showing location of Pochin Development Site
Open Map