Worst House on the Street Logo
Pochin Development Site - Image 1
Pochin Development Site - Image 2
Pochin Development Site - Image 3
Pochin Development Site - Image 4
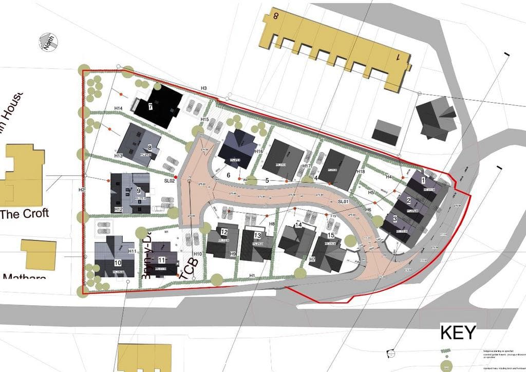
Pochin Development Site - Image 5

Pochin Development Site

Wales

£85,000
Listed on 14/06/2024

Property Details

Bedrooms
3
Type
Detached house

Description

This property boasts a prime location that combines natural beauty with convenient access to local amenities, schools, and transport links. The surrounding area is known for its appealing landscapes, offering potential homeowners picturesque views of the nearby mountains. Currently, there is planning consent in place for the development of 12 detached homes on the site. The approved designs include a variety of styles, but there is also flexibility for customization to meet individual preferences and needs, pending necessary planning applications. This aspect presents a unique opportunity for buyers or developers to collaborate with architects and create distinctive homes tailored to their vision. The site benefits from established road access, which will facilitate both construction processes and future accessibility for residents. Given the area's strong demand for quality housing, this development holds promising investment potential, making it an attractive option for those looking to capitalize on property opportunities in a thriving community. Interested parties are encouraged to explore design possibilities within the framework of the existing planning permissions. We are available to arrange site visits and provide comprehensive details for prospective investors or individuals keen on building their ideal residence in this sought-after locale. This project represents a notable opportunity in a prestigious area, perfect for those looking to make a lasting impact within the real estate market.

Investment Analysis

(NP22 area)
Area Average
£149/sq ft

Renovation Potential

Est. Renovation Cost
£8,500 - £21,250
10-25% of property value
Monthly Sales
15
Average per month
Market Turnover
24%
Properties sold annually

Local Market Trend (NP22)

Area prices are rising by +11.4% over the last 12 months
3 year growth: 11.1%
5 year growth: 46.6%
Investment Disclaimer: Analysis based on NP22 area averages and may not reflect property-specific factors like condition, exact location, or unique features. Renovation costs vary significantly based on property condition and scope of work. Always conduct professional surveys and get multiple quotes before making investment decisions.

Location

Pochin Development Site
Map showing location of Pochin Development Site
Open Map