Worst House on the Street Logo
Pochin Development Site - Image 1
Pochin Development Site - Image 2
Pochin Development Site - Image 3
Pochin Development Site - Image 4
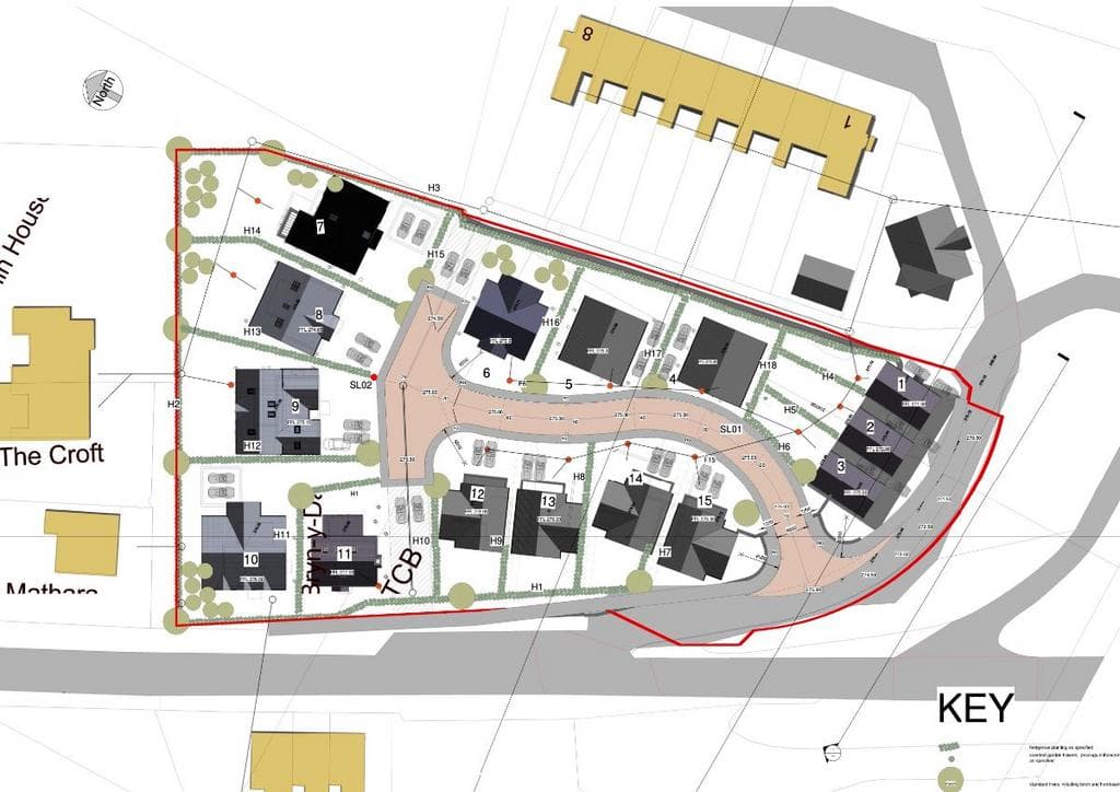
Pochin Development Site - Image 5

Pochin Development Site

Wales

£85,000
Listed on 14/06/2024

Property Details

Bedrooms
3
Type
Detached house

Description

This property is positioned in a sought-after neighborhood, noted for its scenic charm and accessibility to essential amenities, schools, and public transport. Its location also offers impressive mountain views that enhance the overall appeal of the site. The property comes with secured planning consent for the development of 12 detached homes. These homes can be designed in various styles, providing flexibility to adapt plans according to individual preferences and market needs upon obtaining necessary planning approvals. Interested buyers can collaborate with architects to customize their designs, allowing for unique properties tailored to specific tastes. With existing road access already established, construction will be straightforward, benefiting both builders and future residents. The demand for quality housing in this area suggests promising investment potential. For those considering development opportunities or looking to create a personalized residence, this site offers an attractive option. Interested parties are encouraged to explore design possibilities within the approved plans. We welcome inquiries for further information or to schedule a site visit, providing an opportunity to engage in a significant development project in this desirable location. Tenure: Freehold

Investment Analysis

(NP22 area)
Area Average
£149/sq ft

Renovation Potential

Est. Renovation Cost
£8,500 - £21,250
10-25% of property value
Monthly Sales
15
Average per month
Market Turnover
24%
Properties sold annually

Local Market Trend (NP22)

Area prices are rising by +11.4% over the last 12 months
3 year growth: 11.1%
5 year growth: 46.6%
Investment Disclaimer: Analysis based on NP22 area averages and may not reflect property-specific factors like condition, exact location, or unique features. Renovation costs vary significantly based on property condition and scope of work. Always conduct professional surveys and get multiple quotes before making investment decisions.

Location

Pochin Development Site
Map showing location of Pochin Development Site
Open Map