Worst House on the Street Logo
Trigg Road, Heapey, Chorley, Lancashire - Image 1
Trigg Road, Heapey, Chorley, Lancashire - Image 2
Trigg Road, Heapey, Chorley, Lancashire - Image 3
Trigg Road, Heapey, Chorley, Lancashire - Image 4
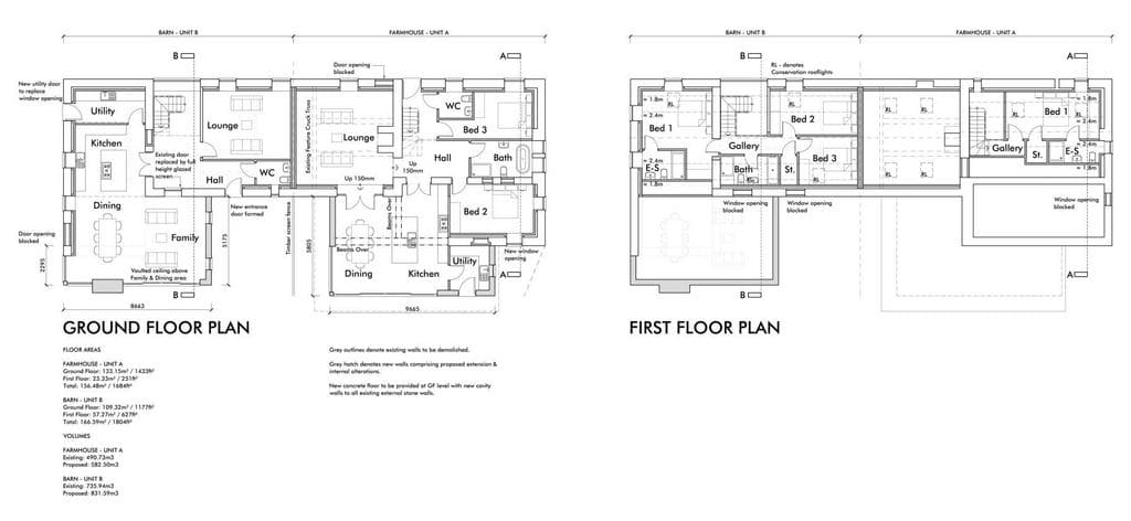
Trigg Road, Heapey, Chorley, Lancashire - Image 5

Trigg Road, Heapey, Chorley, Lancashire

North West

£850,000
Listed on 24/05/2024

Property Details

Bedrooms
6
Type
Detached house

Description

This Grade II listed farmhouse and barn, steeped in history dating back to 1692, presents a compelling opportunity for renovation and investment. Nestled in an elevated rural setting, the property is part of a small cluster of similar residences, offering a tranquil escape while remaining conveniently located just 25 miles north of Manchester and 12.5 miles south of Preston. The charming market town of Chorley is merely 3.4 miles away, providing easy access to local amenities. The existing structures consist of a stone-built farmhouse and a barn, with part of the barn converted into living accommodation in the 1980s. The remainder of both buildings has fallen into dereliction but possesses significant potential for transformation, supported by an active planning application (Number 23/00655/FLK) available for review on the Chorley Borough Council website. The current layout features two distinct units. Unit B, which includes the converted barn, offers a total floor area of 1,804 sq.ft., comprising a kitchen/family room, lounge, and three bedrooms including an en suite in the principal bedroom. Unit A consists of the derelict farmhouse with nearly 1,684 sq.ft. of space spread over two levels, featuring several rooms ripe for creative redesign. Mains water and electricity supply services are available at the property, along with drainage connected to a septic tank. This freehold estate stands as an attractive prospect for those looking to invest in restoration efforts that could leverage its historical significance while maximizing modern living standards.

Investment Analysis

(PR6 area)
Area Average
£225/sq ft
Avg Rent (weekly)
£193
Avg Yield
3.3%

Renovation Potential

Est. Renovation Cost
£85,000 - £212,500
10-25% of property value
Monthly Sales
20
Average per month
Market Turnover
26%
Properties sold annually

Local Market Trend (PR6)

Area prices are falling by +3.2% over the last 12 months
3 year growth: 10.1%
5 year growth: 19.0%
Investment Disclaimer: Analysis based on PR6 area averages and may not reflect property-specific factors like condition, exact location, or unique features. Renovation costs vary significantly based on property condition and scope of work. Always conduct professional surveys and get multiple quotes before making investment decisions.

Location

Trigg Road, Heapey, Chorley, Lancashire
Map showing location of Trigg Road, Heapey, Chorley, Lancashire
Open Map