Worst House on the Street Logo
Between Nettlestead & Somersham, Nr Ipswich, Suffolk - Image 1
Between Nettlestead & Somersham, Nr Ipswich, Suffolk - Image 2
Between Nettlestead & Somersham, Nr Ipswich, Suffolk - Image 3
Between Nettlestead & Somersham, Nr Ipswich, Suffolk - Image 4
Between Nettlestead & Somersham, Nr Ipswich, Suffolk - Image 5

Between Nettlestead & Somersham, Nr Ipswich, Suffolk

East of England

£250,000
Listed on 08/05/2024

Property Details

Bedrooms
N/A
Type
Detached house

Description

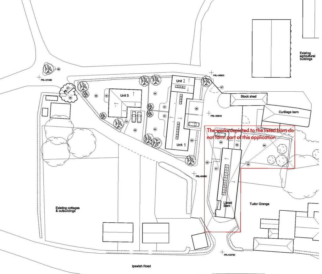
This property presents a promising opportunity for renovation and investment in the form of an approved development project. Planning permission has been secured to replace an existing agricultural storage building with three new residential units: a link-detached bungalow, a link-detached chalet-style house, and a detached bungalow. The total site area spans approximately 0.27 acres (0.11 hectares), providing ample space for these dwellings. Nestled within Watering Farm in the Parish of Nettlestead, this location benefits from its proximity to Somersham, a charming village known for its welcoming community and essential amenities. Residents can enjoy local conveniences such as a pub, shop, primary school, and recreational facilities including a children's play area. Additionally, nearby Bramford and Claydon offer further shopping options and educational institutions. The site’s access to major transport routes is another significant advantage. Just two miles from Ipswich, you’ll find connections via the A14 that facilitate travel eastward toward Felixstowe and westward toward Bury St Edmunds and Cambridge. This enhanced connectivity makes the property attractive for future residents seeking both rural charm and urban accessibility. The approved plans include three well-designed units totaling approximately 2,985 sq ft (276.35 sqm): Unit 1 features an 887 sq ft link-detached two/three-bedroom bungalow; Unit 2 offers a spacious 1,245 sq ft four-bedroom chalet-style house; and Unit 3 comprises an 853 sq ft detached two-bedroom bungalow—all equipped with gardens and parking spaces. In terms of investment potential, this development has been phased effectively to meet local council requirements while maintaining flexibility for future modifications under reasonable conditions once acquired. Notably, there are no CIL liabilities triggered by the initial phase of work already completed on-site. For those considering broader investment opportunities, there is also an adjacent barn available for conversion that can be negotiated separately. This adds another layer of potential value to the overall investment. It's important for prospective purchasers to be aware that access to the site will utilize the existing roadway retained by the current owners; however, easements will be granted for future utility installations required for each unit. Overall, this property encompasses not just immediate residential development potential but also long-term investment viability in a growing area that's rich in community spirit and accessible conveniences.

Investment Analysis

(IP8 area)
Area Average
£327/sq ft

Renovation Potential

Est. Renovation Cost
£25,000 - £62,500
10-25% of property value
Monthly Sales
12
Average per month
Market Turnover
15%
Properties sold annually

Local Market Trend (IP8)

Area prices are stable by +0.3% over the last 12 months
3 year growth: -7.4%
5 year growth: 3.7%
Investment Disclaimer: Analysis based on IP8 area averages and may not reflect property-specific factors like condition, exact location, or unique features. Renovation costs vary significantly based on property condition and scope of work. Always conduct professional surveys and get multiple quotes before making investment decisions.

Location

Between Nettlestead & Somersham, Nr Ipswich, Suffolk
Map showing location of Between Nettlestead & Somersham, Nr Ipswich, Suffolk
Open Map