Worst House on the Street Logo
Land Adjacent Maes Awel, Bont Dolgadfan, Llanbrynmair, Powys, SY19 - Image 1
Land Adjacent Maes Awel, Bont Dolgadfan, Llanbrynmair, Powys, SY19 - Image 2
Land Adjacent Maes Awel, Bont Dolgadfan, Llanbrynmair, Powys, SY19 - Image 3
Land Adjacent Maes Awel, Bont Dolgadfan, Llanbrynmair, Powys, SY19 - Image 4
Land Adjacent Maes Awel, Bont Dolgadfan, Llanbrynmair, Powys, SY19 - Image 5

Land Adjacent Maes Awel, Bont Dolgadfan, Llanbrynmair, Powys, SY19

Wales

£85,000
Listed on 13/09/2024

Property Details

Bedrooms
N/A
Type
Detached house

Description

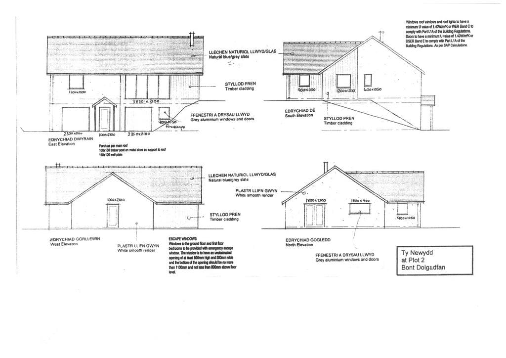
This property presents a compelling opportunity for renovation and investment in the charming rural village of Bont Dolgadfan. Currently, it consists of a single building plot that comes with full planning permission for a modern split-level dwelling. Nestled approximately two miles from Llanbrynmair—a village offering essential amenities such as a shop, café, pub, and primary school—this location strikes a balance between rural tranquility and accessibility. Larger market towns are within reach: Newtown is 18 miles away, Machynlleth is 11 miles distant, and Llanidloes is just 13 miles down the road. The plot benefits from an elevated position that affords stunning panoramic views of both the village and the surrounding countryside. It also adjoins a meadow to the north, enhancing its natural appeal. Notably, significant groundwork has already been completed, including the majority of foundations, retaining walls, and some drainage systems; all of which adhere to building regulations that were in place at commencement. Originally designed as a two-bedroom home, there is potential for further development by converting space on the lower ground floor into a third bedroom if desired. The existing planning permissions (P/2011/0760 & P/2017/1338) remain valid as all pre-commencement conditions have been met prior to their expiry date. For those interested in creating a bespoke residence or exploring rental possibilities in this picturesque setting, this property presents an exciting canvas for future investment. Viewing is available at any reasonable time for interested parties looking to explore the full extent of its potential.

Investment Analysis

(SY19 area)
Area Average
£230/sq ft

Renovation Potential

Est. Renovation Cost
£8,500 - £21,250
10-25% of property value
Monthly Sales
2
Average per month
Market Turnover
15%
Properties sold annually
Investment Disclaimer: Analysis based on SY19 area averages and may not reflect property-specific factors like condition, exact location, or unique features. Renovation costs vary significantly based on property condition and scope of work. Always conduct professional surveys and get multiple quotes before making investment decisions.

Location

Land Adjacent Maes Awel, Bont Dolgadfan, Llanbrynmair, Powys, SY19
Map showing location of Land Adjacent Maes Awel, Bont Dolgadfan, Llanbrynmair, Powys, SY19
Open Map