Worst House on the Street Logo
Building Plot adjacent to Lowenva - Image 1
Building Plot adjacent to Lowenva - Image 2
Building Plot adjacent to Lowenva - Image 3
Building Plot adjacent to Lowenva - Image 4
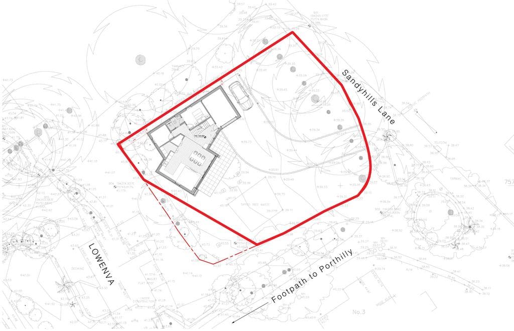
Building Plot adjacent to Lowenva - Image 5

Building Plot adjacent to Lowenva

South West

£1,200,000
Listed on 25/07/2024

Property Details

Bedrooms
5
Type
Detached house

Description

This property presents a unique opportunity for renovation and investment, featuring comprehensive planning permission for an unrestricted dwelling, confirmed under reference PA19/09086. The current owner has laid the foundations, ensuring that the permission is secure. There is potential to customize the design further, subject to obtaining the necessary planning approvals. The layout includes a well-thought-out accommodation plan across three levels. On the ground floor, you enter through a welcoming entrance hall leading into an open-plan living area with direct access to a patio—ideal for outdoor living. This level also includes a double bedroom with an en-suite bathroom, a study, a pantry/utility room, and a plant room alongside an integrated garage. Moving to the first floor, you’ll find a cozy sitting room equipped with a fireplace and kitchenette, complemented by terrace access that offers scenic views of the surrounding countryside. This floor also houses another double bedroom with an en-suite and two additional bedrooms that share a well-appointed en-suite bathroom. The second floor features the principal bedroom which boasts its own en-suite and dressing area along with private terrace space for relaxation. An additional terrace accessible from the hallway provides further outdoor options. Located mere moments from Porthilly Cove and Rock Beach on the North Cornwall coast, this property benefits from proximity to various outdoor recreational activities such as sailing and windsurfing. The area is known for its beautiful sandy beaches like Daymer Bay and Polzeath. Convenience is key here; local amenities including shops and eateries are within walking distance, while Padstow Harbour can be easily reached via ferry. Outside space is thoughtfully designed across all levels—offering garden areas on the ground floor and balconies on both upper floors. The integrated garage facilitates parking needs while ensuring ample driveway parking options are available. With mains water supply in place, electricity nearby for connection, and the option to utilize air source heating, this property not only offers immediate comfort but also significant potential for enhancement or reconfiguration to suit individual preferences or investment objectives.

Investment Analysis

(PL27 area)
Area Average
£395/sq ft
Avg Rent (weekly)
£284
Avg Yield
2.6%

Renovation Potential

Est. Renovation Cost
£120,000 - £300,000
10-25% of property value
Monthly Sales
14
Average per month
Market Turnover
18%
Properties sold annually

Local Market Trend (PL27)

Area prices are stable by +1.9% over the last 12 months
3 year growth: 7.4%
5 year growth: 19.8%
Investment Disclaimer: Analysis based on PL27 area averages and may not reflect property-specific factors like condition, exact location, or unique features. Renovation costs vary significantly based on property condition and scope of work. Always conduct professional surveys and get multiple quotes before making investment decisions.

Location

Building Plot adjacent to Lowenva
Map showing location of Building Plot adjacent to Lowenva
Open Map